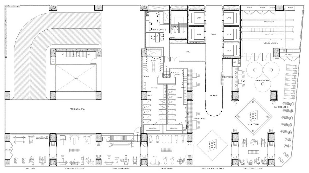
Sam Yan Gym健身房的这第三个分支是对旧办公空间的翻新。它的总面积为860平方米,位于自由广场大楼3楼。Sam Yan Gym的位置被认为是被许多办公楼所环绕的中央商务区。业主的愿望是为用户提供功能完善的现代健身器。他还想将此健身房与他创立的其他健身区分开。设计健身房时会遇到施工限制,因为该区域有许多建筑物的柱子(尺寸1.00 x 1.50米),地板的高度(地板到地板)只有3米。

健身房设计成这样,让你再也找不到懒的理由
点击添加图片描述(最多60个字)

健身房设计成这样,让你再也找不到懒的理由
点击添加图片描述(最多60个字)

健身房设计成这样,让你再也找不到懒的理由
点击添加图片描述(最多60个字)
为了使人们能够轻松进入健身房,因此,健身房入口处没有门。但是,有一个通往健身中心的隔断。它还使人们可以看到健身房中发生的所有活动。因此,引起路过的人们的注意。弯曲的霓虹灯招牌也被引人注目,因为它们被弯曲成引语,并被放置在多个体育馆区域的墙壁上。

健身房设计成这样,让你再也找不到懒的理由
点击添加图片描述(最多60个字)

健身房设计成这样,让你再也找不到懒的理由
点击添加图片描述(最多60个字)

健身房设计成这样,让你再也找不到懒的理由
点击添加图片描述(最多60个字)
设计师提出了设计解决方案,以通过创建一个隔断来摆脱那些支柱,这对于体育馆来说是一个突出的方面。架构师安装了一个网格系统以显示在每一列上。网格由1 x 1 cm的钢制成,在其中编织并间隔15 cm。网格被预制成正方形,每列上都有精确的模块。

健身房设计成这样,让你再也找不到懒的理由
点击添加图片描述(最多60个字)

健身房设计成这样,让你再也找不到懒的理由
点击添加图片描述(最多60个字)
此外,为了克服地板到地板的低高度,建筑师将健身房的天花板设计为裸露的天花板。此外,他还打算将地板和天花板的水平平面着色为黑色,这不仅使它们消失,而且使它们成为垂直平面分区的背景。因此,增强了隔断的独特性。设计师希望通过选择红色(暖色调)和蓝色(冷色调)的相反颜色来制作隔断作为Gym的标志。另外,这种相反的匹配帮助营造了一种充满活力的氛围。

健身房设计成这样,让你再也找不到懒的理由
点击添加图片描述(最多60个字)

健身房设计成这样,让你再也找不到懒的理由
点击添加图片描述(最多60个字)

健身房设计成这样,让你再也找不到懒的理由
点击添加图片描述(最多60个字)
设计师还在每块钢条上都使用了这种相反的颜色,因此,创建了一种渐变的颜色效果,该效果会随不同的视角而变化。此外,该分区还用作能够根据使用情况进行调整的多功能显示器。在分配区域时,设计师希望创建一个开放计划,以提供更多的锻炼空间。运动区还连接到休息区,公共区域和一个酒吧,作为一个整体空间。网格分区根据旧列的跨度空间将区域划分为多个区域,健身房的家具风格也旨在与网格分隔设计兼容。

健身房设计成这样,让你再也找不到懒的理由
点击添加图片描述(最多60个字)

健身房设计成这样,让你再也找不到懒的理由
点击添加图片描述(最多60个字)

健身房设计成这样,让你再也找不到懒的理由
点击添加图片描述(最多60个字)
提示:图文来源于网络,版权归原作者所有/转发名设网